Achterstraat 19a

Lamswaarde

€ 449.000,- k.k.

Foto icon Foto's
Plattegrond icon Plattegronden

Omschrijving

Recent gebouwde, royale, luxe bungalow met een volledig woonprogramma op de begane grond. Op een perceel van 499 m2 een ideale woning om rustig en comfortabel te kunnen wonen. Gezien de compactheid van de ruimtes en het perceel de perfecte mogelijkheid voor degene die levensloopbestendig wil wonen, maar een appartement geen optie is.

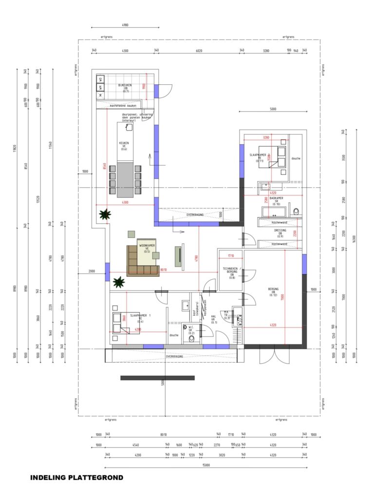
Indeling

***Entree
Royale entree met aan twee zijden ruime ingebouwde garderobekasten. In de hal bevindt zicht tevens het luxe toilet met fontein en de meterkast. Vanuit de entree zijn de woonkamer en de garage te bereiken.

***Woonkamer
De riante woonkamer met vide heeft grote raampartijen met een schuifdeur naar het terras. Hier is plek voor een ultra grote loungebank. Het middenconsole biedt de mogelijkheid voor een tv-scherm om uitgebreid te ontspannen na een drukke week. De warme kleuren die gebruikt zijn op vloeren en wanden zijn perfect te combineren met de hedendaagse interieurstijlen.

***Leefkeuken
Aansluitend aan de woonkamer is de grote luxe leefkeuken opgesteld in een rechte wandopstelling met schiereiland. De keuken is uitgerust met alle benodigde inbouwapparatuur waaronder;
* Inductiekookplaat met afzuiging (Bora)
* Koelkast
* Oven
* Magnetron
* Vaatwasser
Ook in de keuken is een schuifdeur met toegang tot het terras. In de achterliggende bijkeuken is een vaste kastenwand met aansluitingen voor de wasapparatuur en tevens plek voor een extra vriezer.

***Masterbedroom
De masterbedroom is ingedeeld met een walk-in dressing, badkamer en slaapgedeelte. De walk-in dressing heeft aan twee kanten ingebouwde kasten met hang- en leggedeeltes. De luxe badkamer beschikt over een dubbele wastafel met meubel, een tweede toilet en een dubbele regendouche. Ook is de nog mogelijkheid om een ligbad te plaatsen. Vanuit het slaapgedeelte is via een glazen loopdeur het terras te betreden.

***2e Slaapkamer annex badkamer
Aan de voorzijde van de woning is nog een ruime tweede slaapkamer gelegen. Hier bevindt zich nog een tweede badkamer voorzien van wastafel met meubel en inloopdouche.

***Garage
De garage heeft een elektrische sectionaal deur en is extra breed (4.3m) zodat hier ook met gemak fietsen en andere spullen opgeborgen kunnen worden. De garage is volledig geïsoleerd en zou nog kunnen worden omgebouwd naar woonruimte. Vanuit de garage is de technische ruimte te bereiken. Hier zijn de wtw-installatie en cv-combiketel opgesteld.

***Tuin
De voortuin is betegeld en voorzien van een oprit. Zowel links als rechts van de woning is via een poort de zijtuin en vervolgens achtertuin te bereiken. De achtertuin heeft een ruim terras en een kunstgras gazon waardoor het onderhoud beperkt blijft en er maximaal ontspannen kan worden.

***Ligging
De woning is fraai gelegen aan een hof met veel privacy en rust. Vestingstad Hulst is op 10 autominuten te bereiken.

Bijzonderheden;
– Volledig voorzien van aluminium kozijnen
– Voorzien van vloerverwarming
– 14 zonnepanelen
– Energielabel A
– Regenwaterput met infiltratie voor duurzaam hergebruik
– Houd rekening met nog afwerkings- en herstelwerkzaamheden

Neem voor meer informatie contact op met ons kantoor.

afspraak-icon Bezichtiging aanvragen
bieding-icon Bod plaatsen
Kan ik deze woning betalen?
Wat is mijn woning waard?

Kenmerken

Bouwjaar:
2020
Aantal kamers:
3
Aantal slaapkamers:
2
Woonopp:
170 m2
Perceelopp:
499 m2
Energie Label:
A
Garage:
Inpandig
Inhoud:
935 m3
Isolatie:
Dakisolatie, Muurisolatie, Vloerisolatie, Volledig geïsoleerd
Verwarming:
CV ketel, Vloerverwarming geheel, Warmte terugwininstallatie
Ligging:
Aan rustige weg, In woonwijk
Warm water:
CV ketel

Locatie