Noordstraat 4d

Terneuzen

€ 1.150,- per maand

Foto icon Foto's
brochure-icon Brochure downloaden

Omschrijving

Energiezuinig en duurzaam 3-kamer appartement gelegen op de 2e verdieping van appartementencomplex Kop van Noord in het centrum van Terneuzen.

Dit geheel nieuwe appartement is gelegen op loopafstand van supermarkt, eetgelegenheden en centrum winkelaanbod.

Algemeen

Het appartement is voorzien van HR++ glas en goede isolatie waarde. Er is een eigen parkeerplaats op afgesloten terrein aanwezig. Er is een afgesloten gezamenlijke fietsenberging en een gezamenlijke binnentuin met zitruimte. Daarnaast beschikt het appartement over een inpandige berging in het appartement en een eigen buitenruimte (balkon). Het appartement heeft een mooi lichtinval en uitzicht op de omliggende stadswijk.

Indeling appartement

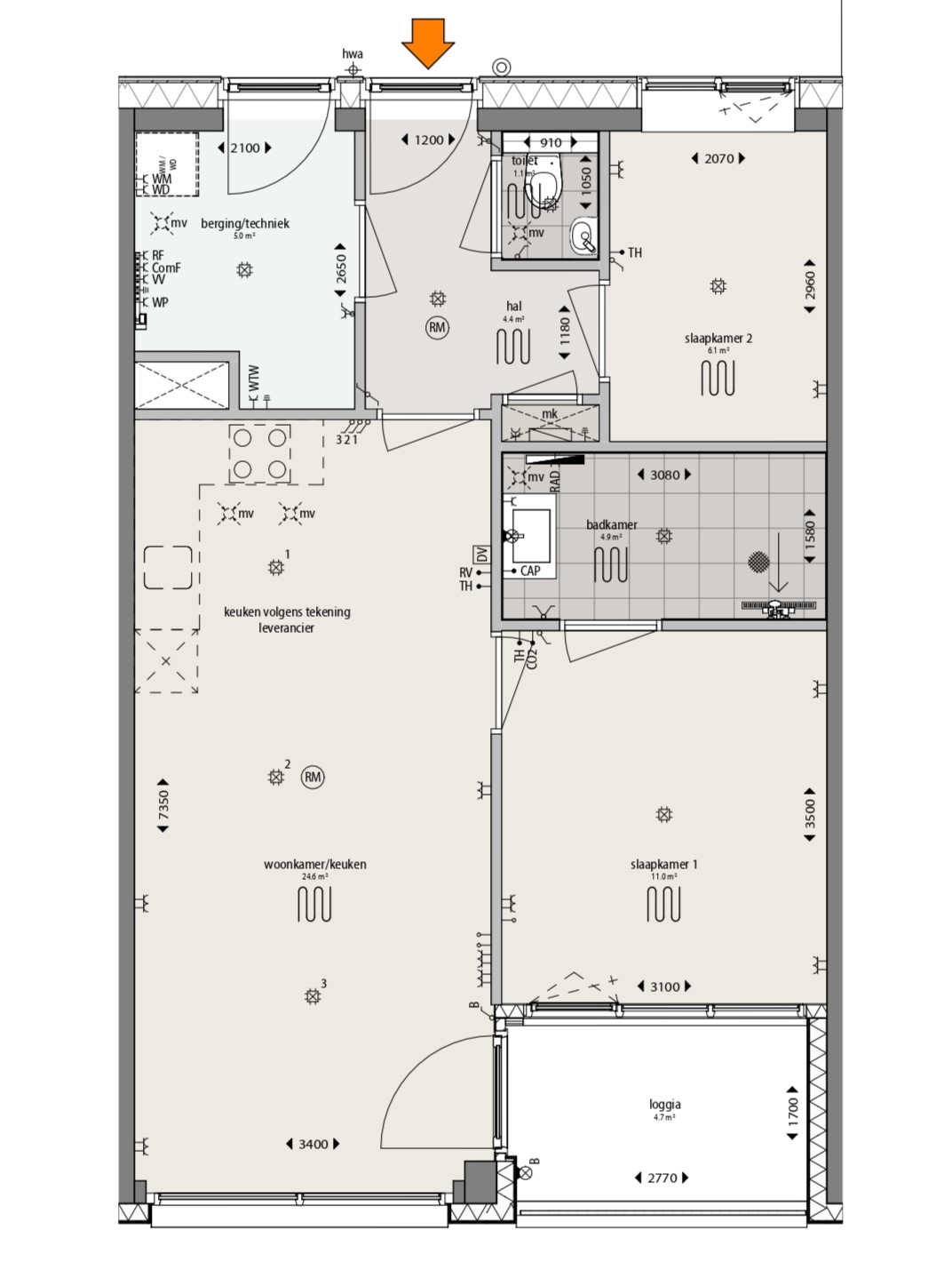
Bij binnenkomst is er een ruime hal, toiletruimte en meterkast. Vanuit de hal heeft u toegang tot de slaapkamer en de woonkamer. Het toilet is geheel betegeld en voorzien van fonteintje en hangtoilet. De berging, welke tevens dient als wasruimte, is vanaf buitenzijde bereikbaar.

De woonkamer met open keuken heeft een totale afmeting van 24,6 m² met een totale lengte van 7,35 cm. De keuken is voorzien van een L-vormige opstelling met bovenkasten, ledverlichting en uitgebreide inbouwapparatuur;
* Koel/vriescombinatie
* Geïntegreerde vaatwasser
* Multifunctionele oven
* Inductie kookplaat 4 zones
* Afzuigkap

Er zijn twee slaapkamers, met daar tussenin de badkamer. De hoofdslaapkamer is aan de voorzijde gelegen en voorzien van kiep-kantel raam met een afmeting van (310cm*350cm).

Slaapkamer 2 is aan de galerijzijde gelegen en voorzien van een kiep-kantelraam met een afmeting van (296cm*207cm).

De badkamer is geheel betegeld en voorzien van een inloopdouche, wastafel en wastafelmeubel.

De ligging van het inpandig balkon is op het zuiden en heeft een afmeting van 277cm*170 cm). U kunt hier heerlijk met 2 of meer personen genieten van de middagzon.

Voorzieningen
De verwarming wordt met vloerverwarming voorzien door middel van een warmtepomp. Slaapkamers en woonkamer zijn met eigen thermostaat te regelen. Warmwater voorzien via de warmtepomp door middel van een elektrisch aangedreven boiler.

Inrichting
Het gehele appartement wordt voorzien van een pvc laminaatvloer en zowel de slaapkamers als de woonkamer zijn voorzien van horizontale jaloezieën. Hal, woonkamer en slaapkamers zijn voorzien van renovlies behang.

Parkeren
Op een afgesloten terrein aan de achterzijde van het appartementencomplex bevindt zich een parkeerplaats voor de auto.

Bijzonderheden
– voorlopig energielabel A+++
– servicekosten voor huurder: € 60,- p/m

Heeft u interesse in dit nieuwe appartement, gunstig gelegen met eigen buitenruimte en parkeergelegenheid? Schrijft u zich in om in aanmerking te komen.

Voorwaarden
Er wordt een waarborgsom van 2 maanden huur gevraagd.

Bezichtigingen;
Bezichtigingen worden uitsluitend ingepland na aanlevering van;
– Ingevuld aanvraagformulier
– 3 recente salarisstroken
– Werkgeversverklaring
– Verhuurdersverklaring (indien aanwezig)

Interesse? Neem dan contact op met ons kantoor.

afspraak-icon Bezichtiging aanvragen
bieding-icon Bod plaatsen
Kan ik deze woning betalen?
Wat is mijn woning waard?

Kenmerken

Bouwjaar:
2024
Aantal kamers:
3
Aantal slaapkamers:
2
Woonopp:
61 m2
Energie Label:
A+
Garage:
Parkeerplaats, Geen garage
Inhoud:
175 m3
Isolatie:
Dakisolatie, Muurisolatie, Vloerisolatie, Dubbelglas, HR glas
Verwarming:
Vloerverwarming geheel, Warmtepomp
Ligging:
In centrum
Warm water:
Elektrische boiler eigendom

Locatie