Graafjansdijk A 93

Westdorpe

Verkocht

Foto icon Foto's
Plattegrond icon Plattegronden

Omschrijving

Op te knappen dijkwoning met ruime aanbouw, inpandige berging en royaal dakterras met achterom naar brandgang. Deze woning is ideaal voor starters die een plekje voor zichzelf willen.

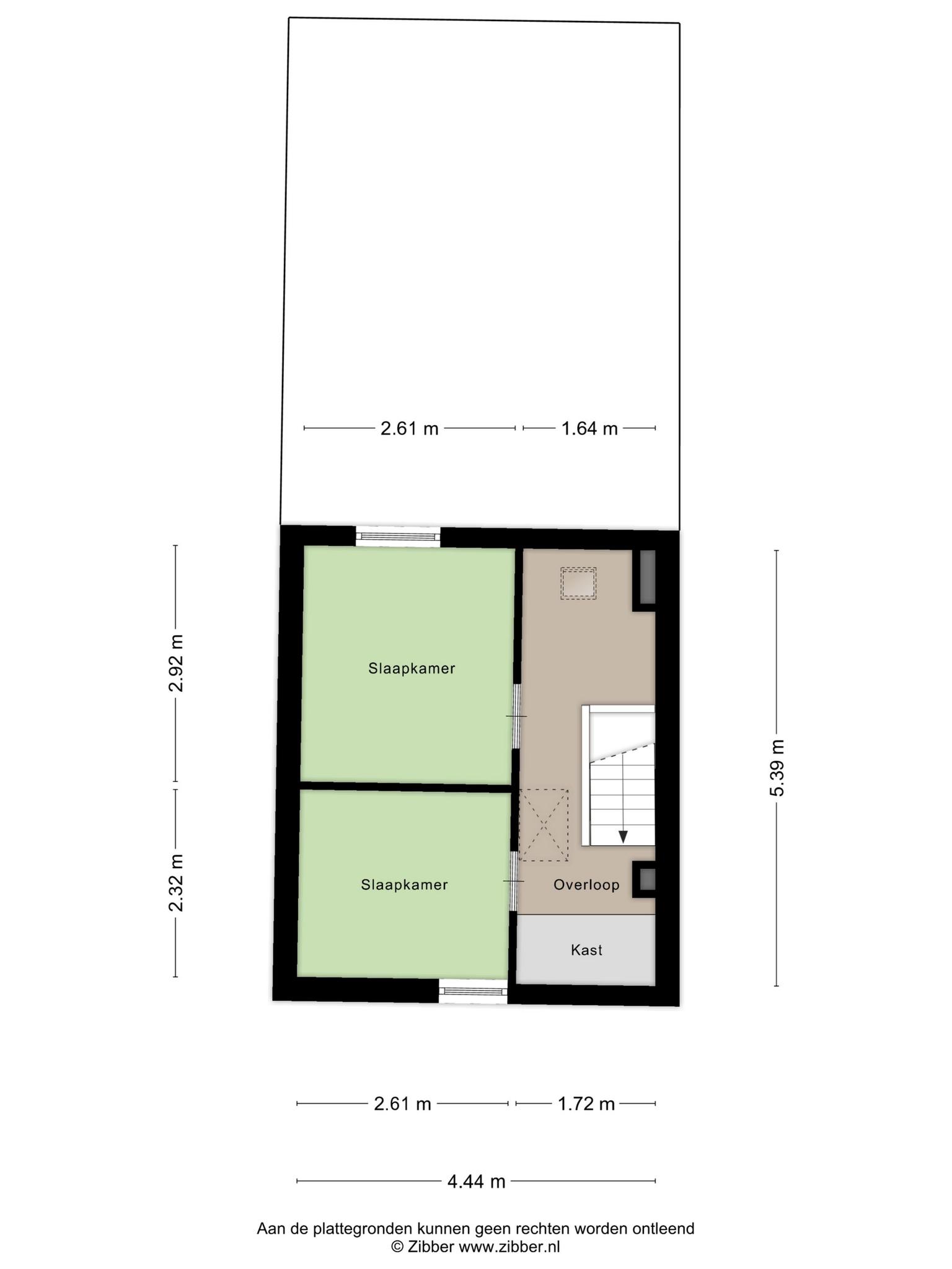
Indeling

Begane grond
Entree met tegelvloer en vernieuwde meterkast. Ruime woonkamer (25 m²) met laminaatvloer, sfeervolle gaskachel en trap naar eerste verdieping.

Aan de achterzijde van de woonkamer is de aanbouw gerealiseerd; een ruime eetkeuken met tegelvloer en voorzien van lichtkoepel, zodat er extra licht in de ruimte ontstaat.

De keuken is uitgevoerd in een L-opstelling en voorzien van inbouwapparatuur:
* 5-pits gaskookplaat
* oven
* koelkast
* vriezer
* afzuigkap
* vaatwasser
Grenzend aan de keuken is de wasruimte met aansluitingen voor de wasmachine en waar ook de cv-combiketel is gesitueerd. Ook is hier de badkamer die geheel is betegeld en voorzien van ruime doucheruimte, wastafel met meubel en toilet. Via de achterdeur bereikt u het ruime dakterras.

1e Verdieping
Op de eerste verdieping bevinden zich de overloop en twee slaapkamers.

Vliering
Via een vlizotrap is de bergzolder bereikbaar, ideaal voor het opbergen van niet alledaagse spullen en is voorzien van isolatie.

Dakterras
Betegeld dakterras en houten vlonders met achterom (32 m²) naar gezamenlijk achterpad.

Berging
Inpandige berging, welke zich onder het dakterras bevindt en is voorzien van elektra.

Ligging
Op korte afstand liggen Sas van Gent en Zelzate met alle benodigde winkels, verenigingen en dagelijkse voorzieningen. Ook zijn van hieruit Gent en Antwerpen makkelijk te bereiken. Deze woning is prachtig gelegen aan de rand van wandelgebied Canisvliet.

Kenmerken:
– Ruime aanbouw
– Dakterras
– 2 slaapkamers

Benieuwd naar de mogelijkheden? Neem voor meer informatie contact met ons op!

afspraak-icon Bezichtiging aanvragen
bieding-icon Bod plaatsen
Kan ik deze woning betalen?
Wat is mijn woning waard?

Kenmerken

Bouwjaar:
1920
Aantal kamers:
3
Aantal slaapkamers:
2
Woonopp:
74 m2
Perceelopp:
88 m2
Energie Label:
D
Garage:
Geen garage
Inhoud:
263 m3
Isolatie:
Dakisolatie, Gedeeltelijk dubbelglas
Verwarming:
CV ketel
Ligging:
Aan rustige weg
Warm water:
CV ketel

Locatie