Westkolkstraat 48

Terneuzen

Verkocht

Foto icon Foto's
Plattegrond icon Plattegronden

Omschrijving

Statig opvallend ruim Herenhuis met souterrain, diepe achtertuin met achterom en garagebox.

Op loopafstand van Scheldeboulevard, theater, bioscoop en diverse horeca gelegenheden is dit karakteristiek voormalige notariswoning gelegen.

Indeling:

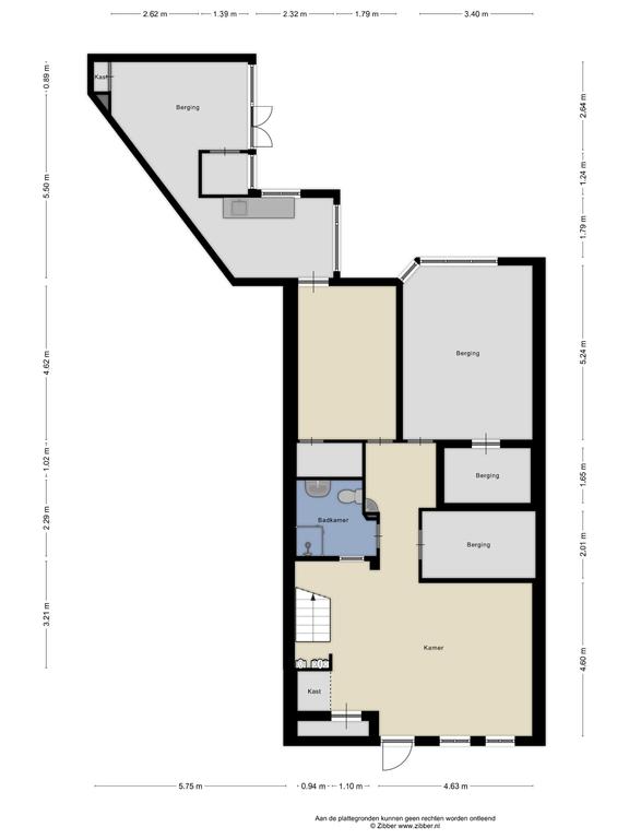
Souterrain;
Toegankelijk via voorzijde gebouw en achtertuin. Voorzien van hobby/werkkamer aan voorzijde, tuinkamer met tuindeuren aan de achterzijde.
Badkamer met toilet, wastafel en douche. Meterkast met vernieuwde groepenkast en diverse bergruimtes en een kluisruimte. Souterrain is verbonden met de aanbouw welke is voorzien van een hobbyruimte met keukenblok en toegang naar achtertuin.

Begane grond:
Via trapopgang heeft u toegang tot het portaal met statige voordeur. Hal met originele trap naar verdieping en toiletruimte.
Woonkamer met hoge ramen (kunststof) welke u veel lichtinval geeft zowel aan voor als achterzijde.
Type woonkamer; kamer en suite (lengte 866 cm*485 cm). Achterzijde voorzien van erker en terrasdeuren naar dakterras.
Keukenruimte: eenvoudige keukenruimte met achterraam en keukenopstelling (lengte 446 cm). Aansluitend bevind zich de bijkeuken met aansluiting voor witgoed en terrasdeur.

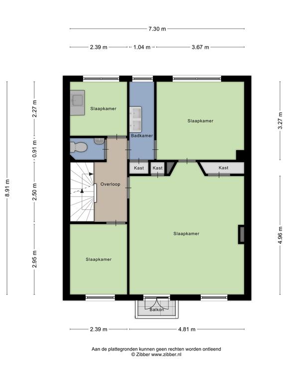
1e Verdieping:
Overloop, toiletruimte en totaal 4 slaapkamers en een badkamer.
Slaapkamer 1 voorzijde met toegang naar balkon (481cm*496cm) met dubbele vaste kasten en toegangsdeur naar slaapkamer 2. Vanaf het balkon heeft u zicht op het binnenkomend scheepsverkeer naar de Zeesluis van Terneuzen.
Slaapkamer 2 achterzijde (327cm*367cm) met toegang naar badkamer. Badkamer met dubbele wastafel.
Slaapkamer 3 achterzijde (240cm*227cm) voorzien van wastafel. Slaapkamer 4 voorzijde (295cm*240cm).

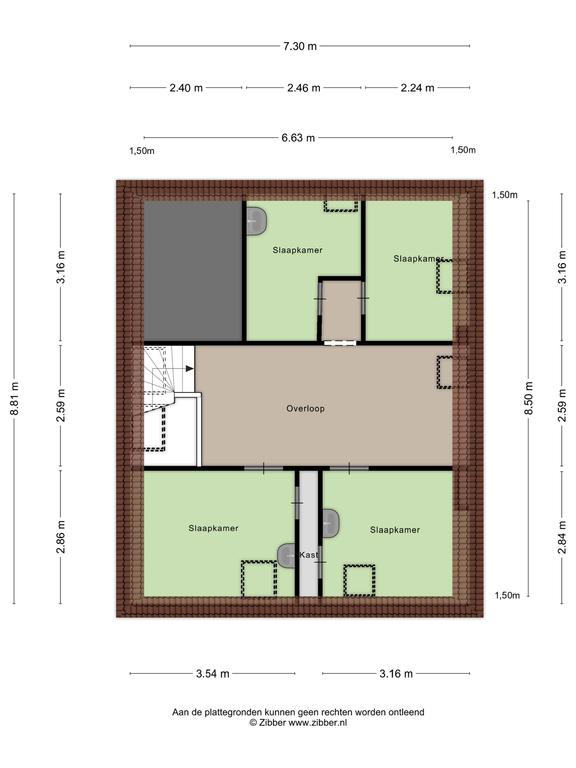
2e Verdieping:
Via vaste trap bereikt u de ruime overloop, voorzien van veluxramen en toegang tot 4 slaapkamers.
Slaapkamer 5 voorzijde (354cm*286cm) voorzien van veluxraam, wastafel en vaste kast. Slaapkamer 6 voorzijde (316cm*284cm)
Slaapkamer 7 achterzijde (215cm* 316cm) met dakraam. Slaapkamer 8 (225cm* 316cm) met wastafel en dakraam.

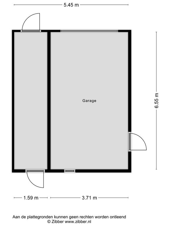
Garagebox:
Direct grenzend aan de achtertuin gelegen garagebox met sectionaldeur en elektra. Aangrenzend is een berging/doorgang met poort gelegen voor toegang naar openbare straat.

Tuin:
Korte voortuin met trapopgang en toegang naar souterrain, voorzien van ijzeren omheining.
Achtertuin diepe achtertuin met stenen trap naar dakterras en achterom via poort naar de openbare straat.
De tuin is in te richten naar eigen idee en geeft zeker mogelijkheden tot het creëren tot een intieme tuin.

Monumentaal:
Dit karakteristieke pand is een gemeentelijk monument. Vraagt u bij de gemeente Terneuzen naar de voorwaarden en mogelijkheden voor instandhouding van deze woning.

Deze woning behoeft grondige renovatie zowel binnen als buitenzijde en aangelegen voorzieningen zijn beperkt. De woning beschikt over een oud energielabel.

afspraak-icon Bezichtiging aanvragen
bieding-icon Bod plaatsen
Kan ik deze woning betalen?
Wat is mijn woning waard?

Kenmerken

Bouwjaar:
1853
Aantal kamers:
11
Aantal slaapkamers:
8
Woonopp:
192 m2
Perceelopp:
301 m2
Energie Label:
A
Garage:
Garagebox
Inhoud:
1.170 m3
Isolatie:
Gedeeltelijk dubbelglas
Verwarming:
Mogeljkheid voor open haard
Ligging:
Aan rustige weg, In centrum, In woonwijk
Warm water:
Elektrische boiler huur

Locatie